Kraków, Krowodrza, Azory, Różyckiego

Mieszkanie na sprzedaż

Opis nieruchomości

Zapraszam na prezentację mieszkania po generalnym remoncie, idealne pod wynajem lub dla rodziny.
W pełni umeblowane i wyposażone.
Można od razu wchodzić i mieszkać bez ponoszenia dodatkowych kosztów. 

Do sprzedania trzypokojowe mieszkanie Kraków, Krowodrza ul. Różyckiego. 
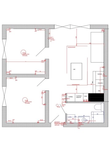
Mieszkanie o powierzchni 43,6 m2 (w księdze wieczystej 45,5 m2) usytuowane na czwartym piętrze dziesięciopiętrowego budynku z lat 70 tych.

Mieszkanie posiada balkon.
Ekspozycja południowa i wschodnia.

Mieszkanie po generalnym remoncie.
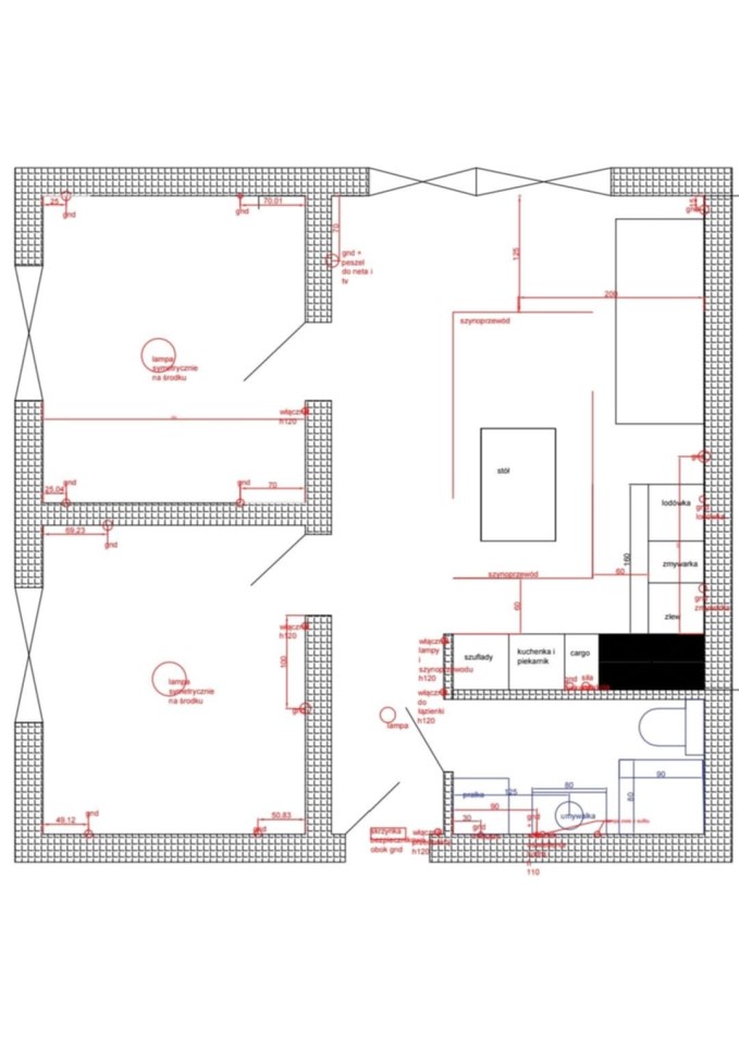
Wymienione wszystkie instalacje, nowe podłogi oraz drzwi wewnętrzne i zewnętrzne, gładzie na ścianach, nowe okna PCV.
W pełni umeblowane i wyposażone, nowe meble robione na zamówienie oraz sprzęty agd dotąd nie używane.

Kuchnia połączona z pokojem, umeblowana i wyposażona.
Łazienka z kabiną prysznicową oraz wc.

Ogrzewanie centralne miejskie, woda ciepła miejska (brak gazu w mieszkaniu). 
Czynsz administracyjny ok. 550 pln (w tym ogrzewanie i woda).

Do mieszkania przynależy piwnica (1,9 m2).
Miejsca postojowe za szlabanem tylko dla mieszkańców (wjazd na pilota). 

W okolicy: ul. Radzikowskiego, Weissa, Opolska, uczelnie AGH, UKEN, Park Krowoderskich, szkoły, przedszkola, żłobki, Castorama, Ikea, Żabka, Biedronka,  pętla autobusowa Azory, stacja kolejowa Łobzów.

ZAJMUJĘ SIĘ POSZUKIWANIEM MIESZKAŃ NA INDYWIDUALNE ZLECENIE KLIENTA!

JEŚLI MASZ JUŻ DOŚĆ PRZEGLĄDANIA OGŁOSZEŃ I DZWONIENIA DO WIELU BIUR NIERUCHOMOŚCI, ZLEĆ TO JEDNEMU AGENTOWI Z WIELOLETNIM DOŚWIADCZENIEM. 
WSPÓŁPRACUJĘ Z INNYMI POŚREDNIKAMI ORAZ BIURAMI. W TWOJE RĘCE MOŻE RÓWNIEŻ TRAFIĆ OFERTA, KTÓRA JESZCZE NIE ZOSTAŁA OPUBLIKOWANA NA PORTALACH.

ZNAJDĘ DLA CIEBIE WYMARZONE MIESZKANIE I PRZEPROWADZĘ CIĘ PRZEZ CAŁY PROCES ZAKUPU. 

Oferuję również bezpłatną pomoc w uzyskaniu kredytu.
Współpracuję z kancelarią notarialną, doradcą kredytowym, firmą wykończeniową oraz firmą ubezpieczeniową. 

Zachęcam do odwiedzenia mojej strony www.glodeknieruchomosci.pl. Tam więcej ofert na sprzedaż i wynajem w tej lokalizacji i nie tylko.
Zapraszam również na mojego Facebooka Głodek Nieruchomości.

Powyższe ogłoszenie nie stanowi oferty handlowej w rozumieniu przepisów art. 66 par. 1 Kodeksu Cywilnego, a dane w nim zawarte mają jedynie charakter informacyjny i mogą ulec zmianie.

Nota prawna

Opis oferty zawarty na stronie internetowej sporządzany jest na podstawie oględzin nieruchomości oraz informacji uzyskanych od właściciela, może podlegać aktualizacji i nie stanowi oferty określonej w art. 66 i następnych K.C.

Szczegóły oferty

Symbol oferty MS-360
Powierzchnia 45,50 m²
Powierzchnia użytkowa 45,50 m²
Liczba pokoi 3
Piętro 4
Rodzaj budynku blok
Technologia budowlana płyta
Opłaty w czynszu administracja, Części wspólne, fundusz remontowy, monitoring, ogrzewanie, sprzątanie, Winda, wywóz nieczystości
Liczba pięter w budynku 10
Piwnica 1,90 m²
Stan lokalu po generalnym remoncie
Stan prawny Własność
Mies. czynsz admin. 550 PLN
Okna PCV
Instalacje wymienione
Balkon duży
Rok budowy 1970
Ogrzewanie miejskie
Winda tak

Pomieszczenia

Podłogi pokoi panele
Typ kuchni z zabudową kuchenną
Rodzaj kuchni aneks kuchenny - połączony z salonem
Typ łazienki razem z wc
Wyposażenie łazienki kabina prysznicowa

Lokalizacja

Kalkulator kredytowy

PLN
%
Wysokość raty

Kalkulator kosztów

PLN
PLN
PLN
PLN
PLN
PLN
%
PLN
Podatek od czynności cywilno-prawnych
Taksa notarialna (opłata notarialna)
VAT od taksy notarialnej (opłaty notarialnej)
Wniosek do WKW
VAT od wniosku do WKW
Prowizja agencji nieruchomości
VAT od prowizji agencji nieruchomości
Wypisy aktu notarialnego - około
RAZEM (cena + opłaty)

Uwaga: mogą wystąpić dodatkowe opłaty za założenie księgi wieczystej oraz ustanowienie hipoteki.

Podobne oferty

mieszkanie na sprzedaż - Kraków, Bronowice, Bronowice Wielkie, Rydla

mieszkanie na sprzedaż

Kraków, Bronowice, Bronowice Wielkie, Rydla
1 pokój 42,00 m2 16 880,95 zł/m2
mieszkanie na sprzedaż - Kraków, Dębniki, Praska

mieszkanie na sprzedaż

Kraków, Dębniki, Praska
2 pokoje 46,20 m2 19 264,07 zł/m2
mieszkanie na sprzedaż - Kraków, Podgórze Duchackie, Piaski, Bochenka

mieszkanie na sprzedaż

Kraków, Podgórze Duchackie, Piaski, Bochenka
2 pokoje 47,70 m2 14 465,41 zł/m2
mieszkanie na sprzedaż - Kraków, Podgórze Duchackie, Piaski, Łużycka

mieszkanie na sprzedaż

Kraków, Podgórze Duchackie, Piaski, Łużycka
2 pokoje 45,00 m2 13 300,00 zł/m2

Napisz do nas

Proszę wypełnić to pole
Proszę wypełnić to pole
Proszę wypełnić to pole
Proszę wypełnić to pole
Trwa wysyłanie...

Ta strona wykorzystuje pliki cookies w celach statystycznych oraz w celu dostosowania naszych serwisów do indywidualnych potrzeb klientów. Zmiany ustawień dotyczących plików cookie można dokonać w dowolnej chwili modyfikując ustawienia przeglądarki. Korzystanie z tej strony bez zmian ustawień dotyczących cookies oznacza, że będą one zapisane w pamięci urządzenia.

rozumiem